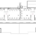
El proyecto se ubica en planta baja de un edificio de viviendas con acceso directo desde la calle. Las salas de diálisis se distribuyen alrededor del Control de Enfermería que las divide espacialmente en dos zonas más pequeñas e íntimas, sin perder la vigilancia de todos los pacientes.
Adecuación al entorno// La Clínica de Diálisis se encuentra en los bajos de un edificio de viviendas, con acceso directo desde el exterior y bien comunicado con el transporte público y arterias de comunicación de la cuidad, en el barrio de Sant Andreu de Barcelona.
Organización y Esquema// El local tiene una distribución rectangular alargada y se abre al patio interior, más tranquilo. Encontramos 2 accesos desde la calle, uno principal público y en el otro extremo otro acceso técnico que se utiliza para personal y suministros, así se separan las circulaciones.
Vinculado al acceso público encontramos los vestuarios y un pasillo a modo de sala de espera, pautado por los pilares que sirven de cerramiento visual. Para conseguir que este corredor-espera fuera más agradable, se intervino, haciendo la parte superior con cristal transparente, para dejar entrar la luz al interior del centro.
La Clínica dispone de 3 salas de tratamiento: dos generales y una tercera con cuatro puestos. La distribución de las dos salas generales se realiza de manera que queda el control de enfermería en el centro con visión a todos los puntos de tratamiento, pero se divide la sala espacialmente de manera que quedan diez sitios en cada lado, dando lugar a espacios más pequeños y con menos ruido y más intimidad para los pacientes.
Singularidad y Carácter// El local, que goza de una gran altura libre ha permitido diseñar un falso techo transitable, por el que discurren las instalaciones, de esta manera a la hora de mantener o repararlas, se puede acceder a cualquier hora sin necesidad de entrar en las salas de diálisis y no se molesta a los pacientes que reciben tratamiento.
Los materiales utilizados tienen que ser resistentes y lavables. Esto podría llevar a Se ha utilizado un pavimento vinílico continuo, con la combinación de colores en las zonas reconocibles, como es el acceso y Control, de color claro para dar luminosidad al interior. El techo es de panel sandwich no registrable ya que es accesible por la parte superior, también de color blanco. Los revestimientos verticales son de HPL, para proteger de los golpes, pero se intercalan los colores para dar ritmo y vibración a la zona de espera. En ellos se incluyen imágenes en vinilo representativas que sirven como distracción y como señales orientativas. La parte superior de estas paredes, se acaba con cristaleras, para dejar pasar la luz y das sensación de amplitud a los espacios que podrían parecer pequeños o estrechos.
La salas disponen de un mueble bajo especialmente diseñado, que incluye canaleta y registro de tal manera que todas las instalaciones de cada unidad de tratamiento se realizan integradas en el panelado.
Criterios de Sostenibilidad// Són una exigéncia irrenunciable a cualquier actividad y desde la arquitectura se tiene que garantir este objetivo. La reforma del local para convertirlo en el centro atiende a aspectos de optimización de la energía lumínica (orientación, sistemas de control de luminescéncia y sistemas de ahorro energético). Sistemas de climatitzación natural (protección solar de las ventanas, mecanismos de ventilación natural), sistemas pasivos de control (paredes aislantes, ventilación transversal y efecto invernadero a través de la inércia de los forjados) y de aislante acústico del edificio (materiales aislantes, ventanas de cristal doble y texturas de aislante acústico) para conseguir un edificio adaptado a las necesidades actuales. La obra se ha ejecutado casi toda con divisiones en seco y a toda altura.











